《暖暖的新家》今晚播出第十期节目,讲述的是居住在北京什刹海地区一位风筝老艺人的故事,看设计师李万历如何巧妙改造,助老人传承风筝文化。网易家居作为独家战略媒体,为您同步报道精彩内容!
‘家是灵魂的窝’。我认为,每个人的灵魂深处,对家的需求都是非常个性的,就像在人群中很难找到两个长相非常相似的人一样。灵魂的需求找到后,我们便可以开始构思我们的设计了。
——设计师李万历
设计理念家是灵魂的窝

委托人王赤峰的家,是在后海南官房胡同12号的一个四合院,这是标准三进四合院的后院,是一个大宅门家最后边的院。后海是目前北京保护较完好的四合院区域,著名的恭王府、宋庆龄故居皆坐落于此。所以,后海在北京是非常独特的地区,它肩负着传承北京逐渐稀少的四合院文化的重任。
设计师李万历认为,保护好四合院也是设计师的责任。对待四合院需要像对待古董,去保护四合院的一砖、一瓦、一土、一木。而这,也是此次改造项目的重要前提。
设计亮点为人所需 暖心所在
全玻璃橱窗

全玻璃橱窗
全玻璃橱窗优点和作用:第一,传承传统风筝艺术的愿望,吸引更多的人来欣赏老北京传统风筝的魅力。玻璃橱窗晶莹透彻,无论是白天在阳光下,还是夜晚在灯光下,橱窗展示效果都非常漂亮;第二,解决了风筝工作室室内采光严重不足的问题;第三,玻璃结构与原四合院中式 装修效果图)建筑的结构完全不同,玻璃材料又是通透的,这样,一方面是对原四合院结构最好的尊重;另一方面,与周围环境形成和谐的统一。
上“升”下“降”

巧妙设计阁楼
考虑到层高,设计师巧妙地增加了一半阁楼。屋顶高约2.8米,五架梁下基本在2米左右,设计师争取在1.9米左右的地方增加,不会影响到阁楼下的正常生活。再者,向下60公分进行挖掘,设计了一个讲课桌,一部分人们可以往下坐用来听课,一部分解决收纳问题。总体上,增加了约7立方的收纳区域,彻底解决储物问题。
排水装置

改造后的厨房
户内外路面相差62㎝,上下水、污水排放难以解决,导致没有厨房装修效果图)和厕所 。设计师决定,一定要解决厨房、卫生间装修效果图)的排水问题。
暖心Logo

暖心Logo
鹰对于委托户王赤峰一现代(<a style="COLOR: rgb(15,107,153); TEXT-DECORATION: underline" title="现代装修效果图" href="http://home.163.com/photo/?q=%E7%8E%B0%E4%BB%A3" target="_blank"">现代装修效果图)主义简洁的手法,设计而成的Logo ,以鹰的形象设计,却简练的只用两只眼睛和一个嘴来表达,且鹰的嘴,使用了中国传统吉祥的蝙蝠图案,寓意着吉祥幸福。
本期委托户31㎡里风筝世家

改造前的家
王赤峰的家在什刹海南官房胡同12号,一个百年老四合院里的耳房。因为是耳房,地势低矮,再加上历史上修路不断抬高路基,日积月累下来,王赤峰家的地面与屋外的路面形成了62厘米的高度差。

改造前的客厅
悬殊的高度差不仅给王赤峰一家出行带来不便,而且导致家里排不出下水,更没有厨房、厕所。为此,一家人生活产生的废水,都要用水桶拎到百米外的胡同里才能倒掉;平时盛菜的餐具都是一次性的,避免刷盘子刷碗产生污水;洗衣机因为没有下水管道,一直荒废在院子里,冬天当冰箱储物。

改造前的餐厅
所需与所求 满足委托户的需求

改造前的卧室
各种问题掺杂在一起,王赤峰老人也提出了自己的需求。作为非物质文化遗产—风筝制作的传承人,王赤峰和女儿经营着一家风筝家庭艺术馆。因此对风筝的制作、经营和传承,王赤峰家堆满了各种制作风筝的原材料,屋内没有储物空间,杂乱不堪;油盐酱醋等厨具,与做风筝用的画笔、调料盒、颜料混杂在一起常常搞混。

改造前储物杂乱
此外,坚持对风筝文化的传承,王赤峰老人经常会给孩子、外来的游客等等讲课,向大家展示中国传统风筝的魅力,但是狭小的空间,容纳几十人显然成了问题。
而最关键的是,业主一家都指望风筝事业养家糊口。所以王赤峰也给设计师提出了,经营是核心,可以牺牲居住,但不能牺牲经营和传承。
155㎡五室四厅一厨一卫设计师巧妙设计
面对这一系列的问题和需求, 一直做大宅设计的著名室内设计师李万历将如何去应对?

设计师24小时体验
设计师坦言,第一眼看到将要改造的房屋,心里还是有些许落差,31平的屋子,一半是杂物,还得供老先生制作、经营、讲课,很难想象一家三代4口人是如何常年居住在这儿的。

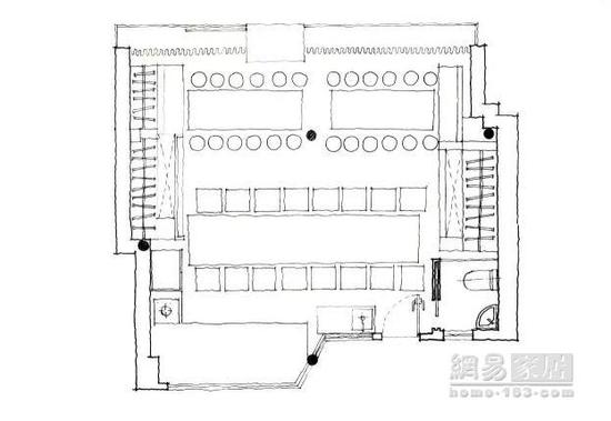
原始平面图
随后的24小时里,李万历与一家人同吃同住,切身体验到了一家人的生活不便,也感受到王赤峰心底对传统风筝的热爱。了解到委托户最真实的所需,设计师也了然到此次改造的重点:业主一家都指望风筝事业养家糊口,同时业主也提出,经营是核心,可以牺牲居住,但不能牺牲经营和传承。

设计师手绘图纸

设计师手绘图纸

设计师手绘图纸
为了实现王赤峰传承传统风筝艺术的愿望,吸引更多的人来欣赏老北京传统风筝的魅力,设计师大胆采用了业内没有人尝试过的全玻璃橱窗的方案,放弃传统钢结构支撑的工艺,改用纯玻璃柱子当支撑,用近3吨重的钢化玻璃做成一个纯玻璃房子。

全玻璃橱窗
同时,设计师合理地安排房屋里的生活与展示空间,增加厨房、洗手间的面积,以及保证一家四口三代各自的私密空间,设计师李万历采用时间维、空间维及逻辑维的多重理念,为新房子设置了五种模式的变换,以适应不同场景的使用要求。

改造后的客厅

改造后的主卧

新增加的次卧
改造后的新家变成了五室四厅一厨一卫,而且为每个家庭成员都打造了一个温馨、独立的空间,再加上可以变身的多功能餐桌、量身定制的风筝制作工作台、隐藏式的化妆台、可容纳40人同时上课的教室。

改造后的餐厅

有记忆的老物件
业主在风筝上对鹰有一个情结, 设计师在得知后努力找了很多研究专家,最终将业主家里损坏的鹰标本修复好。鹰,桀骜不驯、翱翔于天空,所以设计师也将此标本放在了整个屋子的最高处。这件物件,是与其整个家庭灵魂相连的。
马里奥·贝里尼助阵师徒携手公益设计
在设计师李万历勘测现场、构思设计的过程中,被誉为意大利国宝级建筑设计大师的马里奥.贝里尼(Mario Bellini)先生来到北京讲学,“我的老师马里奥.贝尼尼先生,当他听说我正在做一个公益设计,他非常有兴趣,执意,要参与进来。”

设计师带马里奥先生了解北京建筑文化
为了让马里奥先生了解北京的建筑文化历史,李万历带着他穿梭考察了北京的中轴线,从天门、到午门,穿过太和殿、中和殿、保和殿,走出故宫。此外,设计师还带着马里奥走过烟袋斜街,前往王赤峰老先生所住的胡同。

马里奥在王赤峰家
“我向马里奥.贝尼尼先生汇报了我的设计构想。马里奥.贝尼尼先生对设计创意很赞赏,尤其是对四合院的保护理念。此外,马里奥.贝尼尼先生对王赤峰家设计创意也提出了很多非常好的意见。”

法之家设计总监李万历与建筑设计大师马里奥.贝里尼先生同王赤峰会面
本期设计师介绍:李万历

法之家设计总监李万历先生,擅长于大宅的设计。给陈道明老师、冯小刚老师等多位影视大碗儿及企业家设计过令他们“过瘾”的房子,其设计的理念是“家是灵魂的窝”。
李万历先生常年与欧洲著名设计师和大腕有交往、合作和学习,最近刚刚完成了与法国著名的设计大师菲利普.斯塔克(Philippe Starck)和意大利设计教父朱利奥.卡佩里尼(Giullio Cappellini)合作设计的两个居然顶层样板间,获得了广泛的关注和好评。
Cassina被誉为“世界家具之王”,这个品牌的专卖店都是由欧洲很牛的设计师主持设计。这次由李万历先生设计的北京Cassina(卡希纳)中国首家形象旗舰店获得法拉力小总裁马太尔.迪.蒙特泽莫罗的称赞,也受到意大利设计界同行的高度评价。

北京Cassina展厅

北京Cassina展厅
2012年,李万历先生设计的时尚餐厅“ 满堂鸿避风塘”,在哈尔滨引起轰动。

满堂鸿避风塘

满堂鸿避风塘
2014年,李万历先生收获CIDA中国室内设计两项大奖和金堂奖-年度优秀餐饮空间和购物空间设计奖。
家居对话设计师李万历
家居:当初为什么会接受《暖暖的新家》的邀约,来参加项目的改造呢?
李万历:当初北京电视台的导演找到我,希望我能参加这样的公益项目。之所以毫不犹豫答应了,有两点。首先,这是公益项目,是我们应该做的,设计师最大的长项是自己的专业,如果能在专业上帮助人,那就是还原是设计本身的价值;其次,这是改造是帮助小户型家庭改善生活条件,以前20多年我们一直做大宅,在面积利用上很少会去考虑每平方厘米的利用率,这些年我们也在思考,是不是房子越大越好,所以也有这样的愿望,来帮助小户型业主解决居住问题。
家居:能说说,您当时第一次看到被改造房屋时的感触吗?
李万历:落差非常大。这个项目是31平,但半屋子都是杂物,一家三代4口人居住,要做饭,也需要制作、经营风筝,同时还得在这里给别人讲传承风筝的课;其次采光非常差,走进去是很暗的一个环境。所以最初还是有些蒙,过去真没有这方面的体验。之后24小时体验,难点也更加凸显。第一,没有卫生间,出门要走很远才能到公共卫生间,经常需要排队,冬天天气特别冷,尤其是晚上也就更冷;第二,没有厨房,做饭是很大的问题。我试着炒了菜,菜刚下锅,满屋子都是油烟,等到第二天早上才能全部排干净,所以业主一家平时基本上都是吃面条、速冻饺子;吃饭也没有餐桌、切菜只能在一个小推车上……最基本的各种生活功能都不能满足。
家居:委托人给您提了哪些改造要求呢?
李万历:第一,制作风筝。制作风筝需要一套工序,要有制作风筝的地方,尤其是制作风筝的材料,所需的竹子需要多年熟化,得在家放5、6年,得有储藏的地方。熟成的过程、干燥情况、和周边的融合情况这些都需要考虑。
第二, 传承风筝。王赤峰家祖传风筝制作,是宫廷风筝的传承人,是非物质遗产传承人。几代人一直在做风筝, 所以经常需要给小孩子、国外旅游等相关其他人员讲课。很多人特别喜欢到他四合院的家里听课,所以需要一个可以让二十多人坐在家里听课的地方。
第三, 经营风筝。业主一家都指望风筝事业养家糊口。所以他提出了,经营是核心,可以牺牲居住,但不能牺牲经营和传承。
家居:那您是如何满足他的这些要求的呢?
李万历:首先,增加了一半阁楼。之所以说一半,因为房子很矮,房梁下基本在2米8左右,所以阁楼面积不能太大,以免影响后期的经营、讲课。所以加了一半的阁楼,争取在1.9左右的地方增加,不会影响到阁楼下的正常生活。再者,向下60公分进行挖掘,设计了一个讲课桌,一部分人们可以往下坐用来听课,一部分解决收纳问题。总体上,增加了约7立方的收纳区域,彻底解决储物问题。
其次是橱窗的设计。经过调研,我发现,房屋北面是用石棉瓦搭建出来的、长年失修的一块,如果按照原四合院修建,是对原始文化的不尊重;所以我在原有基础之上建成了玻璃橱窗,我们采用了全玻璃设计结构,整个橱窗,五面全是玻璃,没有任何钢结构支撑。这种设计的应用,在全世界是非常少见的。这次设计完全用玻璃做支撑,用玻璃做饰面,不用任何钢做支撑,对设计来说,难度非常之大。我们经过了认真的计算,反复的做实验,终于拿出了一套,可靠、可行的设计方案。全玻璃橱窗优点和作用有三:第一,玻璃橱窗晶莹透彻,无论是白天在阳光下,还是夜晚在灯光下,橱窗效果都非常漂亮。使风筝的展示面发生了翻天覆地的变化;第二,解决了风筝工作室室内采光严重不足的问题;第三,玻璃结构与原四合院中式建筑的结构完全不同,玻璃材料又是通透的,这样,一方面是对原四合院结构最好的尊重;另一方面,与周围环境形成和谐的统一。
家居:您在项目中匹配了很多暖心装置,这也意味着预算成本会提高。您是如何去控制预算的呢?
李万历:之前,我考虑了很多方案,但是打击方案的便是预算。预算制约了方案,很多地方便必须修改,这相当于命题作文,有很多需要顾虑的地方。在此情况下,我进行了削减预算的修改,在考虑核心问题、满足基础功能的前提下,尽量去节省,把最重要的、亟待解决的问题往前排。
比如卫生间,再困难也要做出来。业主家一进院,地面下沉,胡同里的排水管道与院内落差600毫米,水往低处流,外高内低,如何将污水排出去?这也是为什么几十年来,他们家解决不了卫生间的主要原因。后来经过反复考量,增加了一些先进设备,才解决污水、上下水等问题,这些设备投资必然会增加预算成本,但我们在这些地方必须去做。
家居:这是一个老四合院,在传统建筑与满足现代功能需求之间,您是如何去平衡的?
李万历:我一直赞成的理念是,保护四合院要想保护古董一样保护,四合院的一砖一瓦一木一土都不应该动。本来,业主一家强烈要求做成2层楼,一层经营二层居住,这样的确能够解决很多问题。但有一点,他们家所在的四合院是北京仅存的四合院区域,如果要建成2层楼,基本上是需要拆掉,重建成钢筋混凝土结构。我觉得四合院是古董,古董的意义在于保持原貌,保护好它们是我们的责任,这也是一种传承。在这个项目中,对于我们设计师来说,不仅要传承风筝世家的文化,也要传承四合院的文化。所以,我花了很大的精力去说服他们,一起去保护中国原生态的文化,最终业主也同意了。
同时,如果连生活都不能保证,单纯谈传承,那也是不切实际的。经过这次改造,更加验证了我的看法,既满足了所有的生活功能,又能像保护古董一样去保护四合院,二者并不冲突。
在这个项目中,搭建阁楼的另一个原因就是,用钢结构来固定原有的木房梁,既保存了原貌,又能使原有老化的结构得以稳固。所以说,保护原生态是可以与现代的生活功能融合在一起的。
家居:在这个项目中,最让您印象深刻的老物件是什么?您是如何去为业主保留这份记忆的呢?
李万历:在这里,橱窗的作用就很重要。家里几代老人制作的风筝,很多是纪念品,橱窗在展示的同时,保护这些记忆。
其次,业主本人在风筝上有一个情结。王老师在内蒙插队时,一次偶然的机会,王老师在一个悬崖边上捡回了一只小鹰。这只鹰后来一直与他生活在一起,和他们全家都产生了很深的感情。回北京后,邻家小孩都害怕这支鹰,邻居们都要求他把鹰拴起来。拴起来之后,老鹰开始绝食,最终绝食而死。老人因此内心非常内疚,将鹰以标本的形式一直保留在家中,他说这只鹰就像他的守护神一样,是他们家灵魂的寄托。说也正巧了,我也特别喜欢鹰。我小时候听到的第一个故事,是鹰抓狼的故事;十几岁学习做的第一个雕塑,是苍鹰的雕塑;工作以后设计的第一个LOGO,是太阳下的一个雄鹰。所以我特别能理解,鹰的精神含义是什么。我觉得,鹰是王赤峰老师家的精神支柱,是一件非常重要的物件。但由于不能很好的保护,鹰的下颚后来被损坏,我们后来努力找了很多研究专家,最终将鹰的标本修复好。鹰,桀骜不驯、翱翔于天空,所以我也将此标本放在了整个屋子的最高处。这件物件,是与其整个家庭灵魂相连的。
家居:改造完整个项目,给您最大的收获是?
李万历:收获非常大。我的设计理念是:‘家是灵魂的窝’。我认为,每个人的灵魂深处,对家的需求都是非常个性的,就像在人群中很难找到两个长相非常相似的人一样。本着这个出发点我和王赤峰老先生进行了长时间的沟通,以便了解,他对他的家的个性化需求在哪里。
我们了解到,风筝的传承和经营是王赤峰先生对这个房子的最重要有用处,居住功能作为次要的需求。家不是大小来决定的,而是以满足灵魂的需求为根本的,灵魂的需求找到后我们才能开始构思我们的设计。
其次,王先生家住的是一个后海地区的四合院,大家知道,后海地区是北京四合院保护的比较完好的地区,如著名的恭王府、宋庆龄故居等都在这一地区。所以这一地区是北京非常独特的地区,他肩负着传承北京已非常稀少的四合院文化的重任。作为设计师,保护好四合院也是我们的历史责任。